戸建て、マンション、土地など不動産売買仲介は「392売買」にお任せ|博多・天神・北九州・小倉などお勧め物件満載

戸建て、マンション、土地など不動産売買仲介は「392売買」にお任せ|博多・天神・北九州・小倉などお勧め物件満載

お問合せ

Point

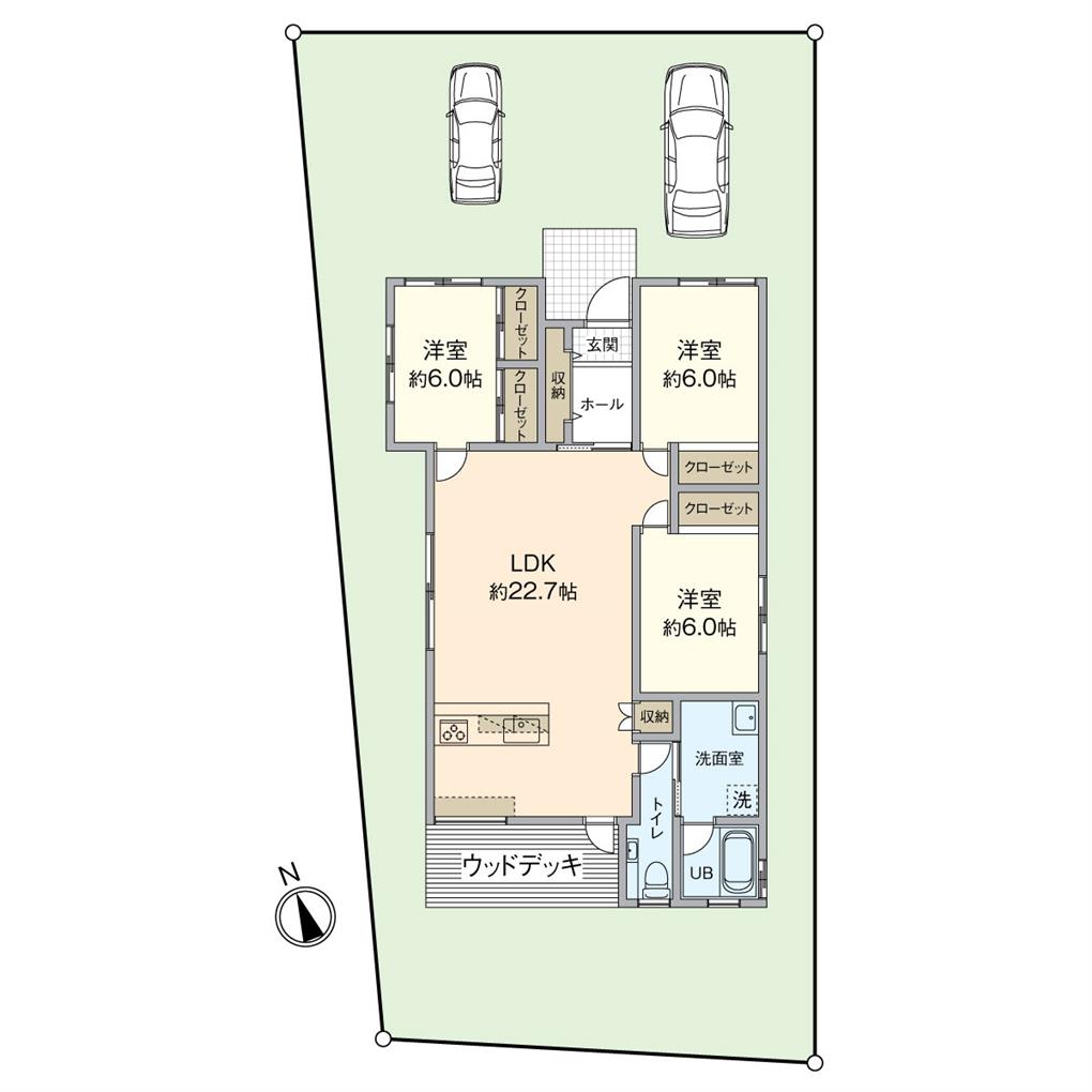
〇平屋建・3LDK・オール電化住宅・閑静な住宅街・リビング約22.7帖
〇駐車場は並列で2台以上スペースが取れます(サイズによる制限有)
〇建物南側にはウッドデッキが設置されており、ガーデニングや日曜大工など趣味を楽しむスペースになります。

担当者: 田崎健一  お問い合わせ番号: M0010403

Smartお問合せ資料請求

物件のポイント/設備・条件/周辺環境

設備等 LDK20畳以上 全居室6畳以上 上水道 下水道 電気 オール電化 キッチンに勝手口 カウンタキッチン システムキッチン IHクッキングヒータ B_T別室 ユニットバス トイレ 玄関収納 クローゼット
駐車場
通学区(小学校) 猪熊小学校 350m 通学区(中学校) 水巻中学校 1400m
近隣施設

物件概要

物件名 猪熊三丁目 新築戸建A棟
物件所在地 福岡県遠賀郡水巻町猪熊三丁目 周辺地図
交通機関 【バス】樋口停 徒歩6分
敷地の権利形態 所有権
土地面積 233.18㎡ 造成年月日
私道負担面積 無し
接道状況 北側幅員4.00m公道 接道11.00m 整形地/不整形地 整形地
地目 宅地 地勢 平坦
国土法による許可又は事前届出 国土法届出不要 セットバック
法令上の制限
建物構造 木造


Warning: Undefined array key "structure_note" in /var/www/392-urikai/templates_c/264e5b134608474947bcafdbe4c00a39101e71b2_0.file.kodate_detail.html.php on line 367

築年月 2025年10月
面積(専有・建物) 93.04㎡(登記)
窓の向き 西 バルコニー
建物階数 1階建 所在階
都市計画 市街化区域 用途地域 第一種低層住居専用地域
現況 引渡時期 相談
備考

その他情報

取引態様 媒介 自社管理番号 M0010403
情報更新日 2025/10/11 次回更新予定日 2025/11/11
  • ※価格は物件の代金総額を表示しており、消費税が課税される場合は税込と表記の上、税込価格で表示しております。
  • ※間取りの「S」はサービスルーム(納戸)です。
  • ※現況と異なる場合には現況を優先します。
  • ※建築条件付き宅地につきましては、土地売買契約締結後3カ月以内に住宅を建築しないことが確定したとき、または住宅の建築請負契約が成立しなかった場合は、
    土地売買契約は無効となり 受領した金額は全額無利息でお返しします。

この物件に関するお問い合わせはこちらへ

株式会社ミクニ 八幡センター

北九州市八幡西区岡田町9-9

TEL:093-645-0392

免許番号 : 国土交通大臣(9)第4032号

(公社)福岡県宅地建物取引業協会会員

(一社)九州不動産公正取引協議会加盟

お問い合わせ番号: M0010403

Smartお問合せ資料請求

お電話でお問合せなら

093-645-0392

お電話の際、こちらのお問い合わせ番を
お伝えいただくとスムーズです。
お問い合わせ番号: M0010403

Smartお問合せ資料請求
  • pagetop
  • pagetop